Das Schaffhauser Architektur Forum und der Heimatschutz Schaffhausen luden zu einer Co-Veranstaltung in die Schaffhauser Neustadt. Hinter den Hausnummern 64 und 79 verstecken sich zwei neue Hofbauten, deren Entstehungsprozesse zu baukulturellen Qualitäten führten, welche die Veranstaltung in den Fokus rückte.
Text: Cornelia Wolf
Bilder: Cyrill Wipf
Zwei Hinterhöfe in der Neustadt Schaffhausen: grosse Baukultur im kleinen Kontext
Christian Wäckerlin, Präsident des Schaffhauser Architektur Forums, begrüsste nebst der rekordverdächtig grossen Gruppe Interessierter auch die beiden Bauherrschaften, die Vertreter der Architekturbüros (im einen Fall in Personalunion) sowie als Fachkundige Katharina E. Müller, Präsidentin des Heimatschutzes Schaffhausen, und Lukas Wallimann, Vertreter der Schaffhauser Denkmalpflege. Zum Einstieg zeigte Wäckerlin eine Luftaufnahme, die den Standort der Bauten in ihrer örtlichen Situation – quasi hinter den Kulissen des öffentlichen Raums – aufzeigten.


Atelier- und Bürobau, Neustadt 79
Bauherrschaft: Rolf Mäder, Gabriela Kupferschmidt Mäder, Werner Martin Mäder
Architektur: Aellig + Lamparsky Architekten Schaffhausen
Das Höfli ist ein eigentliches Hofgeviert. Rolf Mäder und seine Frau haben ein Jahr lang selbst hier gewohnt und die Qualität des Hofes schätzen gelernt. Bei 13 bereits bestehenden Wohnungen war für sie klar, dass sie statt noch mehr Wohnraum Ateliers und Büros ermöglichen wollten. „Wir wollten der Stadt etwas zurückgeben.“ Der neu entstandene Bau steht parallel zur Grabenstrasse an der Stelle des Atelierhauses, in welchem der Schaffhauser Künstler und Holzschneider Jean-Jacques Volz über drei Jahrzehnte lang gearbeitet hat. Nachdem dessen Tod konnte die Familie in Ruhe das Atelier räumen und bekam Zeit, von diesem Ort Abschied zu nehmen. Das Vorgehen, das die Bauherrschaft für die Projektrealisierung gewählt hat, ist vorbildlich und lobenswert. Der frühe Einbezug aller zuständigen Stellen führte zu Klarheit von Anfang an und in der Folge zu einer beachtenswerten Fahrplaneffizienz: Im August 2022 suchte die Bauherrschaft das Gespräch mit dem Architekturbüro Aellig + Lamparsky. Mit Lorenz Aelligs Vorprojekt-Plänen wurden sie im Oktober bei der Denkmalpflege vorstellig. Am 07.12.2022 reichten sie die Baueingabe ein, vor Weihnachten besprach die Stadtbildkommission das Projekt und gab am 16.1.2023 grünes Licht. Ende Februar war die Rekurszeit vorbei. Der Rückbau des alten Gebäudes dauerte einen Monat und am 15.09.2023 erfolgte die Schlüsselübergabe an die Mietenden.
Bauen bedeutet Zerstören, zerstöre mit Verstand
Christian Wäckerlin zitierte mit diesen Worten den Tessiner Architekten Luigi Snozzi und leitete mit dieser philosophischen Beschreibung eines Bauprozesses zum beispielhaften Vorgehen durch die Bauherrschaft über. Mit Verstand zerstören bedingt eine Analyse und Auseinandersetzung mit dem Ort und den vorhandenen Gegebenheiten. Ein berufsbedingtes Verständnis für die geschichtliche Entwicklung eines Ortes hat Lukas Wallimann, Projektleiter bei der Denkmalpflege Schaffhausen. Er empfiehlt grundsätzlich eine frühzeitige Kontaktaufnahme mit der Denkmalpflege. Im vorliegenden Fall konnte das Amt dank der Vorleistung des Architekturbüros rasch eine historische Bewertung vornehmen: Einfacher Holzbau aus den 70er Jahren, keine schützenswerte historische Bausubstanz, im Hintergrund einer der wenigen erhaltenen Abschnitte der mittelalterlichen Stadtmauer, die mit dem Neubau freigestellt, wo nötig geflickt und die Mauerkrone mit Biberschwanzziegeln gedeckt wurde. „Hier wurde für die Stadt und ihre historische Bausubstanz ein Mehrwert generiert“, zeigt sich Wallimann erfreut. Er schätzt die Qualität des Innenhofs, den er – wie das neue Gebäude auch – als genial bezeichnete. Den Asphaltplatz aufzureissen und durch eine Chaussierung zu ersetzen, sei ein simpler Eingriff, der extrem viel zur Qualität des ganzen Hofs beitrage.


Architekt Lorenz Aellig, der mit seinem Vorprojekt die Grundlage zum zügigen Projektprozess gelegt hatte, ergänzte, dass das ehemalige Gebäudevolumen viel grösser war und über die Stadtmauer hinausragte. Das frühere Gebäude lehnte an die Stadtmauer an, die rückseitig Innenwand war. Im Winter super kalt, im Sommer super heiss. Eine energetische Ertüchtigung hätte keinen Sinn gemacht, so hat man den Bau durch einen neuen, leichten, luftigen Holzpavillon mit einem schmalen Laubengang ersetzt. Die von der Bauherrschaft gewünschte Einfachheit und Reduktion hat ihn und seinen Büropartner so sehr überzeugt, dass sie statt einer 100 m2-Industriehalle im Mühlental nun hier zwei kleine Büroräume mieten.
Rolf Mäder, auch Energieberater und –planer, informierte, dass sie den Bau optimal isolieren konnten. Aufgrund der Ausrichtung nach Osten, wurde auf Photovoltaik verzichtet, dafür planen sie eine Dachbegrünung. Energie für die Bodenheizung kommt vom Hauptgebäude und in jedem Atelier gibt es Kaltwasser. WC-Anlagen und eine Waschküche stehen in einem anderen Hof-Gebäude zur Verfügung.
Bescheidenheit, Ehrfurcht und Pragmatik
Das Ziel von SCHARF sei ja immer, eine hohe Baukultur anzustreben, sagte Christian Wäckerlin, und er würde mutig behaupten, dass man hier von einer sehr hohen Baukulturqualität sprechen könne. Ihn fasziniere die Bescheidenheit, der bewusste Verzicht aufs Maximum, diese Nutzung, die durch die Atelier- und Bürovermietungen nicht rein privat bleibe, sondern den Raum belebe. „Das ist eine Bescheidenheit und auch eine Ehrfurcht und eine pragmatische Lösung, die man bei privaten Bauherrschaften wohl eher selten sieht. Ein glücklicher Zufall, dass alle Beteiligten zur richtigen Zeit am richtigen Ort das Richtige gemacht haben.“
Katharina E. Müller lobte den ganzen Prozess auch aus der Sicht des Heimatschutzes, der ja meist ähnliche Anliegen verfolge wie die Denkmalpflege und auch gerne beratend zur Verfügung stehe. Mit einer Machbarkeitsstudie zeitig das Gespräch suchen – genau so würde sie das Vorgehen empfehlen.
Und dann die Besichtigung
Im Gebäude eingemietet sind das Architekturbüro, ein Strickatelier und zwei Therapieräume. Minimalistisch eingerichtet, aufs absolut Notwendige reduziert und top aufgeräumt strahlen die Räume eine Klarheit und durch das viele Holz trotzdem eine gewisse Behaglichkeit aus. Die Wände sind mit breiten, auffällig gemaserten Seekiefer-Sperrholzpanelen getäfert, die Böden mit Linoleum belegt. Es gibt ein internes Belüftungssystem und individuelle Lüftungsklappen über den Türen. Was es braucht ist: Kunstlicht, denn die Ausrichtung nach Osten lässt tatsächlich nicht viel Sonne ins Gebäude. Was an heissen Sommertagen natürlich auch ein Vorteil ist. Im Hof gibt es Platz für spontane Treffen der Hofanwohnerschaft. Persönlich und gemeinschaftlich ist das Motto.


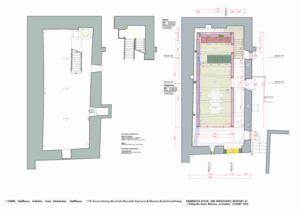
Das Haus im Haus, Neustadt 64
Bauherrschaft / Baurechtsnehmer: Dejan Mikavica
Architektur: Mikavica-Architektur Schaffhausen
Erst auf den zweiten Blick realisiert man, dass hier im Hinterhof des Hotels Tanne etwas Bauliches passiert ist. Das einzige äussere Zeichen eines Eingriffs ist ein Fensterausschnitt, der momentan noch von einer halbtransparenten, im Wind flatternden Blache abgedeckt ist. Tatsächlich hat sich hier aber etwas getan, was man in Schaffhausen wohl nicht so oft sieht: Hier hat sich einer ein Haus in ein Haus hinein gebaut. Einer, das ist Dejan Mikavica, Architekt, Bauherr und Baurechtsnehmer.
Das aus dem Jahr 1533 stammende Réduit-Gebäude, um das es hier geht, diente als Lager für alte Fässer und war beim Umbau des Hotels Tanne zu einer Art Reserve für zusätzliche Studios geworden. Es gab zwar ein Vorprojekt, sagte Dejan Mikavica, es wurde aber nie realisiert. Der Architekt gelangte mit seinem Haus im Haus-Projekt an die Stadt und konnte das Gebäude im Baurecht erwerben.
Auch er zog früh die Denkmalpflege hinzu. Fazit (Lukas Wallimann fasst zusammen): Es war ein unnutzbares Gebäude, fast 500 Jahre alt, mehrgeschossig, aber ohne Geschossdeckung, nur die Balkenlagen waren vorhanden. Unten gab es einen riesigen Gewölbekeller mit noch eingelagerten alten Fässern. Die Situation wurde bauarchäologisch untersucht, und nachdem auch die Inventarisatorin der Denkmalpflege grünes Licht gab, konnte Mikavica sein Konzept erarbeiten. Im Innenraum konnte er sich seinen Traum verwirklichen, die Fassade bleibt unverändert. Augenfällig ist sie übrigens, leicht verlebt wie eine Collage der Zeit, eine Zeugin verschiedenster Nutzungen über die Jahrhunderte.

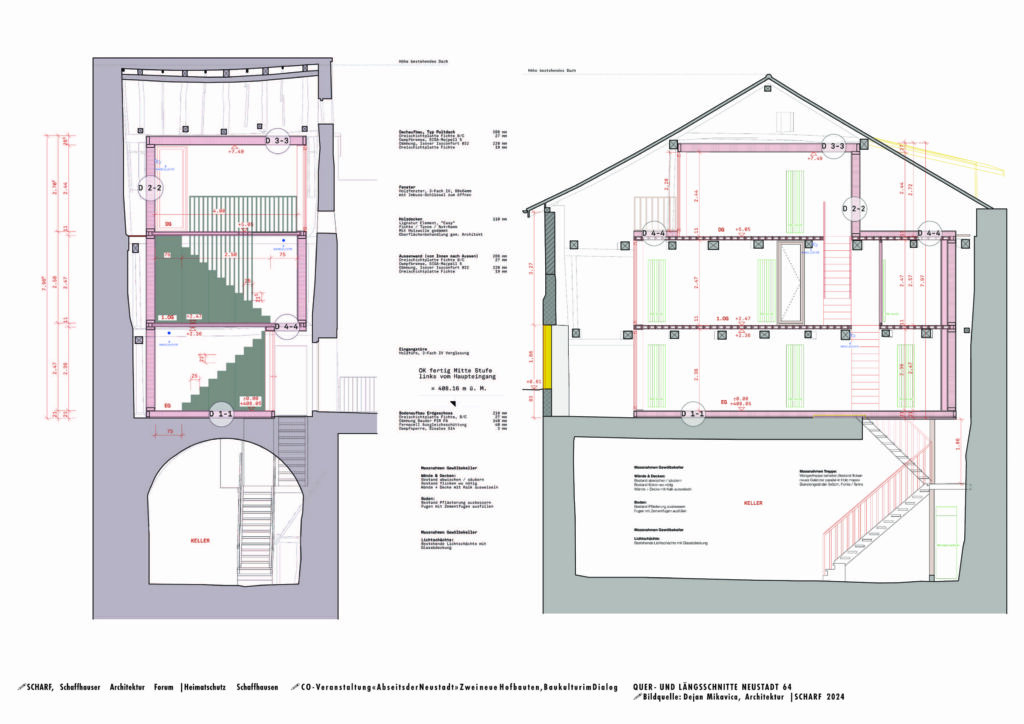
Zeitgemäss wohnen in der Altstadt
Wenn man in der Altstadt zeitgemäss wohnen will, kommt man kaum um einen Ausbau des Dachstockes herum, meist gibt es dann eine Dachgaube, um den Dachraum zu belichten. „Hier sieht man keine Gaube, wie wohnt Dejan Mikavica?“, fragte Christian Wäckerlin. „Ohne Stirnlampe!“, scherzte dieser, „es gibt ja Tageslicht, das durchsickert.“
Das Konzept einer Holzbox – quasi als Innenfutter zum bestehenden, kalten Gebäudemantel – bestand von Anfang an. Der Innenausbau erfolgte nach der Sanierung des Daches, über die grosse Fensteröffnung. Drei Monate lang waren zwei Zimmerleute damit beschäftigt, die Holzbox perfekt in die Balkenlagen einzupassen. Entstanden sind drei beheizte Räume auf drei Stockwerken, mit Küche und einem kleinen Bad. Der Abstand von der alten Innenmauer zur Holzbox ist unterschiedlich gross. Der Eingang führt über diesen schmalen Zwischenraum. Fenster- und Loggiaeinschnitte lassen durch den grossen Fenstereinschnitt in der Aussenfassade und durch Glasziegel im Dach Tageslicht einfallen. Sie haben übrigens richtig gelesen: die Holzbox verfügt über in den Zwischenraum hinausgebaute Innenterrassen.
Der Zwischenraum hat seine eigene Qualität, man sieht viel von der bestehenden Substanz und es hat Platz, um sich zu bewegen, seine Velos zu parkieren oder die notwendige Haustechnik unterzubringen. Mikavica hätte die Box voluminöser bauen können, wollte das aber bewusst nicht, weil ihm der Wohn- und Arbeistsraum so genügt.
Der Gewölbekeller ist unbeheizt und riesig. Hier fand die zweite Etappe der Sanierung statt, ebenfalls in Kontakt mit der Denkmalpflege. Eine nachhaltige Sanierung sei es, so Wallimann. Der Raum bleibe unbeheizt und sei multifunktional nutzbar. Vorerst gibt es dort unten noch ein paar der alten Fässer und was man halt sonst so hat im Keller.

Und dann die Besichtigung
Nun brannte die Besucherschar aber darauf, dieses besondere Projekt zu besichtigen. Das Gedränge auf den Treppen und in den Räumen war enorm. Die Box ist nicht riesig, aber zweckmässig. Und funktional. Und ausgeklügelt. Und cool. Und aussergewöhnlich. Und echt schön gemacht. Viel Begeisterung war zu hören und vielleicht ein kleiner Kritikpunkt: auch hier wird das Licht nicht üppig einfallen. Leben, Wohnen und Sein stellt man sich in dieser Box „klösterlich“ vor. Der gezielte Einsatz von Kunstlicht wird aber „weltliches“ Leben ermöglichen, auch wenn in der grossen Fassadenöffnung statt der noch provisorischen Blache dann das Fenster eingesetzt ist.

So unterschiedlich die beiden Projekte sind – die Besuchenden der Veranstaltung waren sich einig, zwei innovative, sorgfältig und vorausschauend geplante und bauqualitativ hochstehend umgesetzte Projekte kennengelernt zu haben. Grosse Baukultur im kleinen Kontext. Bei einem Apéro im Hotel Tanne wurden Diskussion und Dialog interessiert und lebhaft weitergeführt.
Wer diese Besichtigungen verpasst hat, kann sie am Tag des Denkmals im September nachholen.









